News Flash Home
The original item was published from 4/7/2014 2:26:46 PM to 4/19/2014 12:05:03 AM.

News Flash

Planning and Zoning

Posted on: April 7, 2014

[ARCHIVED] Airport Road Holdings, II, LLC Community Meeting

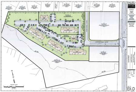
Suncrest Concept Plan

April 7, 2014

Dear Property Owner:

A land use application has been filed with the Roanoke County Department of Community Development by Airport Road Holdings, II, LLC. The request is to amend proffered conditions for an approved rezoning application to allow multi-family dwellings (apartments) in the Suncrest community on Peters Creek Road at Airport Road in the Hollins Magisterial District. The amended proffers and master plan would replace 36 townhome units with 36 apartment units, which would result in all the residential units being apartments.

A community meeting regarding this request will be held as follows:

DATE: Thursday, April 17, 2014

PLACE: Burlington Elementary School – Gymnasium
6533 Peters Creek Road

TIME: 6:30 p.m.

The community meeting is sponsored by the applicant for consideration of its application. The mailing of this notice and the community meeting does not signify support for, endorsement of, or judge the merits of this application by Roanoke County.

Please note that in addition to the community meeting, this petition is scheduled for a public hearing before the Planning Commission on Tuesday, May 6, 2014, at 7:00 p.m., in the Board Meeting Room at the Roanoke County Administration Center, 5204 Bernard Drive. The petition is also scheduled for a public hearing before the Board of Supervisors on Tuesday, May 27, 2014, at 7:00 p.m., in the Board Meeting Room at the Roanoke County Administration Center, 5204 Bernard Drive.

The application is available for public review in the Department of Community Development or online at http://roanokecountyva.gov/pc. If you have any questions please call Mary Zirkle at (540) 772-2068, extension 267 or email at mzirkle@roanokecountyva.gov.

Additional Info...
Facebook Twitter Email

Other News in Planning and Zoning

  1. Where Mountains Meet Adventure.

  1. Roanoke County Virginia Homepage

Contact Us

  1. Roanoke County, Virginia

    P.O. Box 29800
    Roanoke, VA 24018-0798
    Phone: 540-772-2006
    Staff Directory

  1. Virginias Blue Ridge Homepage

Government Websites by CivicPlus®
Arrow Left Arrow Right
Slideshow Left Arrow Slideshow Right Arrow